6.5Mm Creedmoor 1-8'' Twist 24'' Sendero Contour

Manufacturer: Proof Research
UPC: 843068123218
$939.00
$1,148.99
Defiance Ruckus Shouldered Prefit Carbon Fiber Barrels
Availability: Out of stock
+ -
Description
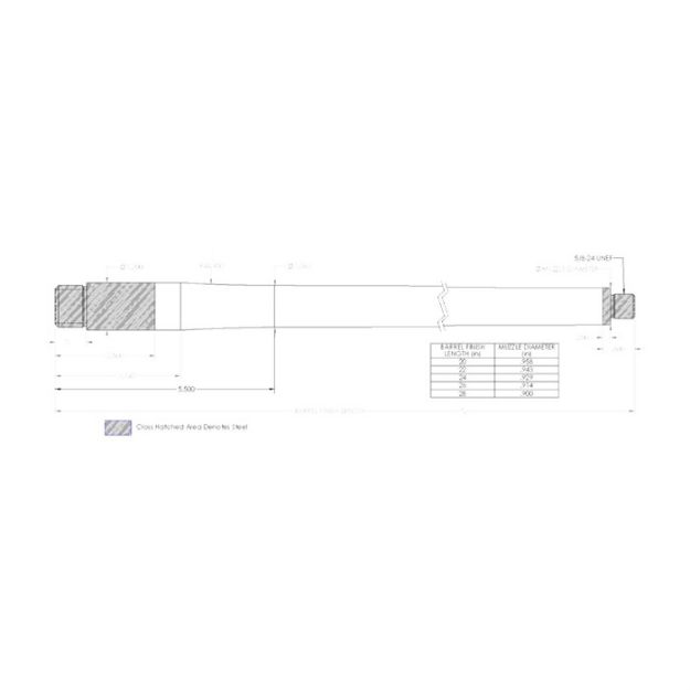
PROOF Research pre-fit carbon fiber & steel barrels for the Defiance Ruckus are to be installed in a simple operation requiring few specialized tools. Their pre-fit barrels are chambered and threaded for a simple install that require only a few specialized tools. Simply torque your barrel on, double check headspace with proper gauges and head to the range! Unprecedented accuracy and performance - it does not get much better than our Defiance Ruckus carbon fiber & steel pre-fit barrels.   Carbon Fiber barrels are 64% lighter than traditional Steel barrels. Improved heat Dissipation for cooler and longer lasting barrels. Wrapped with high-strength, aerospace-grade carbon fiber impregnated with a proprietary matrix resin.   PROOF drop-in barrels are designed to fit Defiance Ruckus, Tenacity and Anti actions with the 'Recessed' bolt nose option only and will not be compatible with actions that have cone, flat, or control round feed bolts.